开云真人舒展于西湖群山之中的龙坞,迄今仍占西湖龙井茶总产量的七成左右,是西湖龙井茶重要的原产地保护区,是国家4A级景区,现已成为中国茶叶博览会永久会址。茶山绵延不绝,环境绝佳,负氧离子浓度为西湖、西溪湿地的4倍,犹如城市中的“天然氧吧”。

陶渊明一篇永世流传的《桃花源记》在现代文明极其发达的今天开云真人,这样的居所更是少之又少。在寸土寸金的杭州主城区,却隐藏着这样一个神秘的板块——龙坞。说它神秘,是因为这个板块虽然属于主城区,但大多数人却没来过里。从卫星地图上看,龙坞的东面与西湖和杭州主城区,隔着连绵不绝的山体。
中港龙井院子售楼处电线✔✔中港龙井院子营销中心电话✔✔中港龙井院子售楼处位置✔✔

在交通出行方面,地铁12号线年末正式批复,起于美院象山站,止于杭州西站。区域内设置有龙坞站点,距离项目仅200米,通过轨交换乘,未来20分钟左右可至未来科技城、滨江区等产业重地,出行便利。

中港龙井院子售楼处电线✔✔中港龙井院子营销中心电话✔✔中港龙井院子售楼处位置✔✔
在生活配套方面,规划打造休闲步行街,且不远处就是龙坞茶镇·九街商业街,消费购物十分便捷;教育资源同样在线,龙坞幼儿园(在建)近在咫尺,西湖第一实验学校(中小学)仅一街之隔,日常仅步行即可接送。


生态环境:龙坞茶镇为国家级4A景区, 拥有茶园14000余亩,周围茶山连绵,山水相绕,森林覆盖率为93.4%,拥有难以复制的景观资源;负氧离子浓度常年维持在6000个左右/cm3。


中港龙井院子售楼处电线✔✔中港龙井院子营销中心电话✔✔中港龙井院子售楼处位置✔✔
外立面以简约利落的线条,勾勒出动静相宜的现代感,质感稳重的石材、精致灵动的熏瓦,更增添了几分稳固质感。街巷静幽的立体庭院,配合大面积的落地窗,室内空间更通透;屋顶在中式传统建筑形制基础上做了美化,延续传统文化与坚固密实两不误。


置身中港·龙井院子,我们希望的是这样一种生活:和城市保持不即不离的距离,和自然保持和谐共生的关系,以一种舒缓从容的方式享受生命的美好过程……同山水私奔,让疲惫的灵魂卸下面具,让性灵得以滋养。人生赏心悦事,莫过于此。


中港龙井院子售楼处电线✔✔中港龙井院子营销中心电话✔✔中港龙井院子售楼处位置✔✔
阔绰庭院、惬意露台、雅致套房、全朝南生活起居......无需外出,就可以在自家的小院或是大露台上散散步、打打太极,活络活络筋骨;还可以伺花弄草、遛狗逗猫;孩子也不需要每日都“禁足”在高层楼房,一方宽阔天地可以让他随心所欲的嬉戏玩耍......


在户型设计上,龙井院子可以说是市场上同类产品中的“独一份儿”。杭州市场上的叠墅产品,基本都是一、二层为下叠,三、四层为上叠,下叠预留地下室,上叠配露台,而龙井院子不同之处在于,它的上叠也预留地下室!


中港龙井院子售楼处电线✔✔中港龙井院子营销中心电话✔✔中港龙井院子售楼处位置✔✔
四室两厅三卫的设计,落地窗外超大花园。一楼乐享花园父母房,二楼通享阳光露台次卧,配置化妆间和步入式衣帽间的主卧,满足一家人对空间的需求。餐客厅一体化,U型厨房。


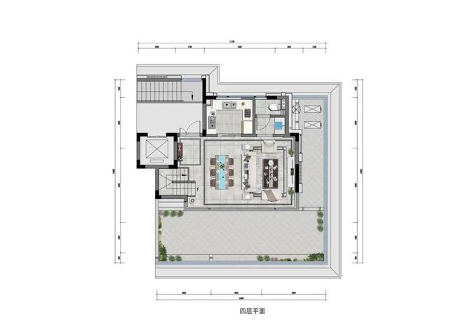
三层为卧室,四层为客厅,四室两厅两卫,上叠L形超大阳台,整个客厅270度通透采光。三楼卧室,三卧朝南,皆配有阳台或露台。隔为两层的地下室,上叠和下叠可各取一层,南向采光天井,让地下室拥有更多阳光和通风。

中港龙井院子售楼处电线✔✔中港龙井院子营销中心电话✔✔中港龙井院子售楼处位置✔✔

建筑面积138㎡的上叠:3室2厅2卫的户型功能,四楼为客厅,三楼为卧室,动静分离,最让人心动的是四楼客厅外约46㎡的大露台,不管是晾晒还是休闲都很适宜,或三五好友品茗聊天,上叠还有侧面一个10多平的可拓展面积,可做小菜园,也可以种种花草,随时享受户外阳光清风。


建筑面积160㎡的下叠在一楼和二楼:4室2厅3卫的户型配置,难得的是四间卧室均朝南。一楼为父母房和客厅,二楼三间卧室,其中主卧配置化妆间和步入式衣帽间,满足主人对空间的需求。

中港龙井院子售楼处电线✔✔中港龙井院子营销中心电话✔✔中港龙井院子售楼处位置✔✔


一楼除了有一个南向花园之外,北向还配有一个小菜园,业主在闲暇之际可以种种菜,重拾童年乐趣。此外,龙井院子还配置私家直达电梯,可在地下二层、地下一层、一层、四层停驻,上叠的业主也能通过电梯,直达入户,满足业主对私密性的要求。

杭州市西湖区,叠排别墅总价550万起。线方。地下室80-160㎡,价格:限价45500元/㎡(含精装)装修情况:4000元/㎡,预计交付时间:2024年底,
